Räume
Spielen - Räume
Räume sind zum Spielen da
Alles was Kinder sehen, hören und fühlen, in Händen halten und begreifen, wird schnell in ein Spiel eingebunden. Gerade die Ein- bis Zweijährigen erfassen die Dinge um sie herum mit all ihren Sinnen. Vergnügt wiederholen sie ihr Tun mehrmals und lernen dabei.
Ihre Erfahrungen und Erlebnisse verarbeiten die Kinder über Rollenspiele. Dadurch, dass sie verschiedene Familiensituationen "nachspielen", lernen sie über das Spiel unterschiedliche Familienkonstellationen und Rollen kennen. Zur Unterstützung des fantasievollen, kreativen und individuellen Spiels halten wir verschiedene Materialien bereit, z. B.:
- Polster
- Tücher in verschiedener Größe und Beschaffenheit
- Naturmaterialien wie Korken, Kastanien
- Kleiderer und Hüte zum Verkleiden
- Schminkstifte
Die Kinder bauen und konstruieren mit ihren Spielsachen kleine Welten, etwa mit Bausteinen, der Holzeisenbahn, mit Tieren und Puppen.
Räume bilden
Die Räume der Kita sind so ausgestattet, dass sie die Kinder zum Forschen, Experimentieren und Spielen einladen. Sie sind so ausgestaltet, dass alle Sinne der Kinder angesprochen werden. Es gibt überall die Möglichkeit, sich zurückzuziehen, z. B. mit einem Buch, an die Staffelei, auf das Höhlenpodest oder in die Polsterhöhle, eventuell zum Malen.
Kinder haben einen natürlichen Bewegungsdrang. In der Schule sollen die Kinder sitzen, um sich zu bilden, bei uns sollen sie rennen und toben. Daher sind die Flure so wichtig. In ihnen kann man so prächtig rennen und an den Nerven der Erwachsenen zerren.
Erdgeschoss
.jpg)
.jpg)
.jpg)
.jpg)
.jpg)
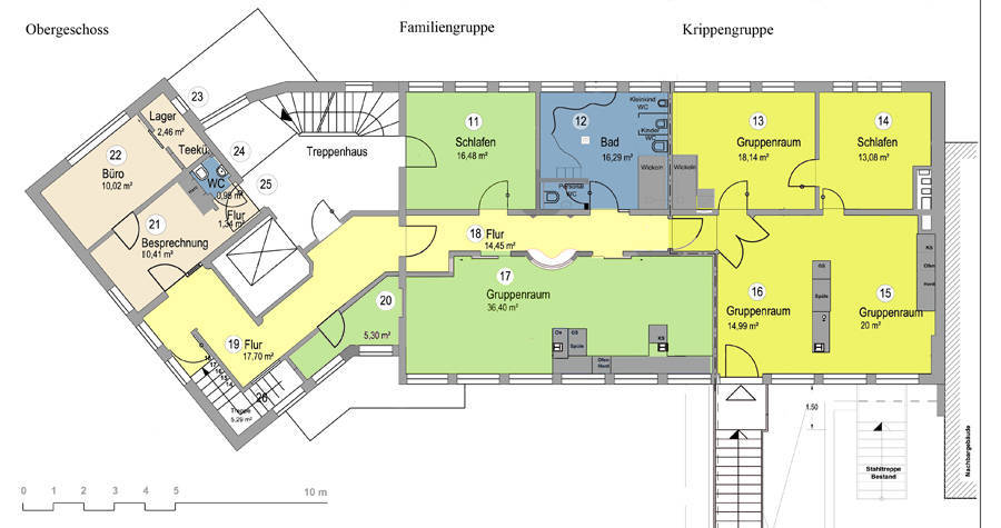
Obergeschoss
Besprechung und Beratung

Familiengruppe



herrlich geeignet zum Rennen.








Krippe




Außengelände
.jpg)
.jpg)
.jpg)
.jpg)
.jpg)
.jpg)
.jpg)